

很少有人知道在成都的金牛区有一处园林艺术博物馆——易园,它是国内首家私立园林艺术博物馆。园内古木参天,郁郁葱葱,溪流潺潺,桥水相映,奇石古桩,姿态各异,继承和保留了中国传统园林建筑的质朴和生动。随着时代的变迁,易园年久失修,逐渐落寞,它盼望着焕发新生。各种机缘巧合,上海大椽建筑设计事务所主持了易园内一栋建筑“易园小筑”的修缮和改造工作。




易园小筑现状问题:
1. 结构复杂,有砖混,现浇混凝土,木结构等多种形式,经过计算,为防范安全隐患,没有在原结构上增加荷载,此外所有涉及外立面的改造和原建筑都应脱离开;
2. 因易园小筑的使用者几易其手,立面层次复杂没有章法,拼凑感强,材料质感差;
3. 入口门头具有川西民居风格特征,但矮小老旧,内外空间的界定并不清晰;
4. 古树与建筑共生共存,贴近建筑生长的古树有7棵,最小距离仅15厘(BIM设计)米。

易园改造前

易园改造前

易园改造前

易园改造前

易园改造前

易园数木现状
建成效果展示 —— 漂浮的园林
水墨山水的意境轻轻漂浮在地景之上,建筑新的立面与原结构完全脱离开,确保了安全系数的同时,实现了建筑与园林的互动。




本次改造,我们确立了五个原则:
1. 精简笔法:留白处理&重点刻画
2.材料表意:玻璃、金属织物、白色墙面
3. 建新与存旧:尊重历史,保留原貌细节
4. 保留每一棵树木,实现建筑与景观共存,保留易园记忆。
5. 因地制宜,顺势而为:前庭和后院采用了两种不同的处理手法,一重一轻,一闭一开,与园林精致的互动相映成趣。

改造后保留每一棵树



改造过程拆解




第1步:1. 外墙埃特板铺平,刷白2. 檐口刷深灰色3. 换新瓦



第2步:1. 避开结构主体,埋基础,立竖向支撑构件。2. 封堵门窗。





第3步:1. 用金属杆件和玻璃包裹铜门。屋顶做防水处理。2. 结构立柱上固定横向支撑构件形成外包框架。




第4步:1. 外挂U型玻璃+灯箱+内衬画布系统完成。2. 金属帘,铜门安装完成。
建筑的基调


易园小筑是一处市民场所,一方面,原本就具有内向型的空间,设计师也通过内部空间的提升和改造,保证了安全性和舒适性,与此同时也为市民提供富有艺术性的空间体验。另一方面,建筑需要建立与园林的衔接,提高对自然极高的开放程度;避免把易园的风貌作为景物,即人对客体的体验,而是明确指向置身环境中的,真实的主体的经历。场所的意义不再是仅仅提供情景,而是具体的指向。

历时半年后,易园小筑的改造终于完成,焕发新生。通过设计师的回访,我们发现不仅作品建成实现了高还原度;更让我们欣喜的是这一作品得到了成都市民的喜爱。易园重新开放之日正值成都的冬天,原本灰蒙蒙的冬日,易园却暖阳高照,过往的市民纷至沓来,穿着汉服与易园合影,摸一摸古朴的铜门,逗一逗园子里的大白鹅,成都的冬天,这一刻,真暖。
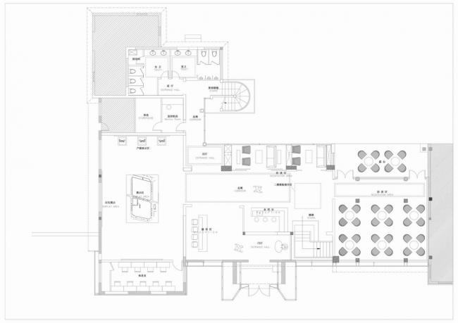
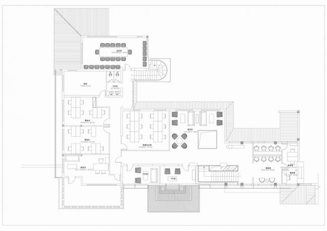
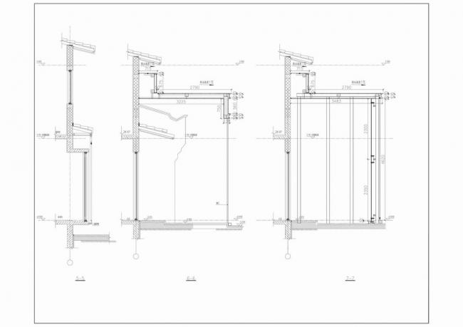
项目图纸

易园地理位置(BIM培训)

改造后保留每一棵树

改造后保留每一棵树

手绘草图——洪东涛

易园小筑改造分解图

一层平面图

二层平面图

立面图

立面图

详图1

详图2
项目信息
建筑师:上海大椽建筑设计事务所
地址:成都, 四川,中国
类别:更新项目
主创建筑师:洪东涛
设计团队:洪东涛, 张月婧, 周夏露, 陈为国, 卢佳源
建筑面积:756.0 m2
项目年份你:2018
摄影师:ArchExist
景观:上海朗道国际景观规划设计有限公司
室内:成都锐度设计顾问有限公司
泛光设计:重庆和美建筑规划设计有限公司
业主:成都天颐置业有限公司

BIM建筑网





评论前必须登录!
注册