

本次项目的公寓位于阿姆斯特丹市中心的福芬公园附近,总共可以容纳八户人家居住其中。场地是一个小庭院,后面是一座以前的校舍,后来变成了住房。这8栋独立住宅建在一家被拆除的小工厂的空地上,而原有的工厂则被用作一家媒体公司的工作区和工作室。隐蔽和封闭的空间让我们想起了中世纪典型的阿姆斯特丹庭院。新的私密庭院设计是通过与Hosper景观工作室以及学校的居民共通商议设计完(BIM设计)成的。公寓楼的业主除了拥有一个小的私人外部空间以外,其余都是公共空间。



新住宅在规模、材料和朝向上都拥有不俗的设计感,并与其周围的城市环境有所协调。正立面的设计边界与原有的地块界限相比向后退了5米,以便在房(BIM学习)屋和学校之间创造更多的空间距离。


为了增加私密性,事务所还创建了一个“遮罩”:即置于立面前方的木质镂空格栅,在私人和公共领域之间形成过度空间。它们水平和垂直放置成架子。正面保持最大的透明度,同时有效放置从侧面看过来的视线入侵。这种遮光罩的另一个优点是可以防止阳光直射。同时遮光罩的旁边也可以种植植物,为整个带来一派生机勃勃的绿意。木格栅延伸到地面上的时候还可以在业主的房子前面形成一个小长凳。


住宅的平面布局相对简洁。这样为居住人创建了依据自己喜好进行调整的机会。这八座房子的布局和内部都很独特。在与仓库所有者、承包商、Vink Bouw和居民的密切合作下,这个方案最终由Arons en Gelauff architecten的设计团队设计成型。


图纸

剖面图

立面图

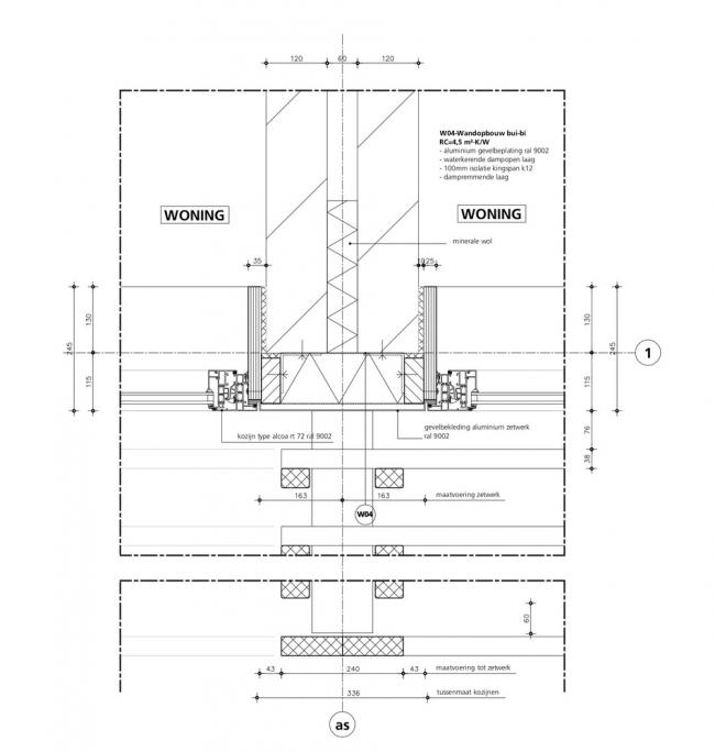
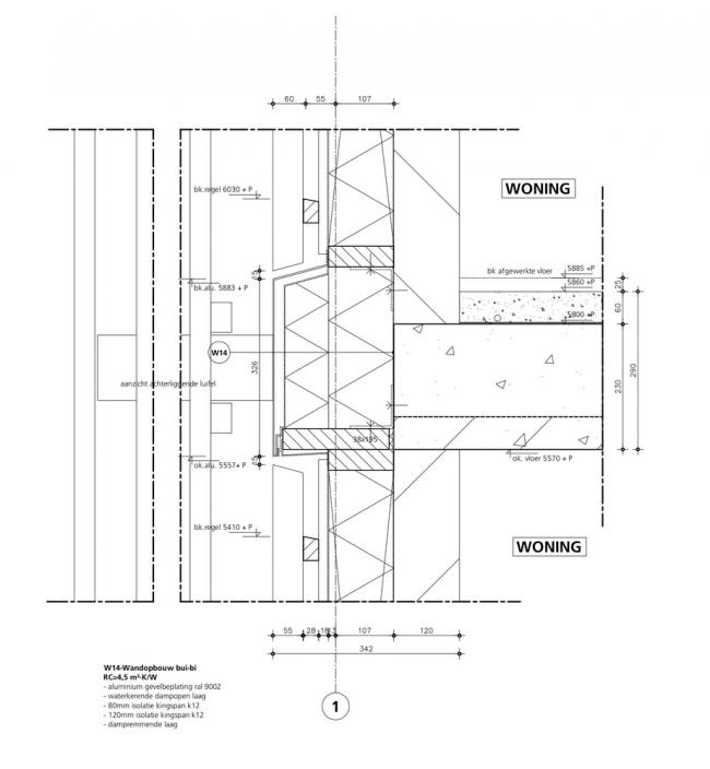
节点大样

平面图

鸟瞰图

分解示意图

节点大样
项目信息
建筑设计:Arons en Gelauff architecten
项目区位:荷兰,阿姆斯特丹
负责建筑师:Floor Arons, Arnoud Gelauff
项目时间:2018年
项目摄影:Luuk Kramer
项目分类:公寓
制造商:Foreco, Glazing Vision, Solarlux

BIM建筑网





评论前必须登录!
注册