
鸟瞰图
深圳是一座带状的、速生的巨型城市,龙岗身处其中,并非中心地带。在福田、罗湖、南山突飞猛进之时,龙岗的城市空间还停留在上个世纪九十年代的水准。然而,经过数十年的发展,越来越多的人来此安居乐业,也产生了越来越多的文化消费需求,这里作为“城市定居”的区域身份,正在向“城市文化”的特征身份演进,这是一个可喜的趋势。作为建筑物质空间的回应,步入新时代的深圳龙岗,需要一系列大胆进取的综合文化设施,来替换和升级陈旧的都市语境。于是,在同一个地点同时建造四座大型文化设施,也成为龙岗区域重塑自身“深圳副中心”定位的重要筹码。

俯视图
作为深圳户籍人口最大的行政区,龙岗区不仅拥有风光绚丽的黄金海岸,同时也拥有历史悠久的客家文化。它与中心城区的真正落后之处,在于文化基础设施的空间营造。认识到这一点后,早在2011年,深圳龙岗市民文化设施就举办了轰轰烈烈的国际竞赛,然后是漫长的讨论、修正、推翻、重设,终于在2014年开始正式的实施深化。这组以“时间”为轴线的纠结,与我们所需要打造的“空间”轴线一样,充满着层层纠结和自我思辨。曾经获得方案专家评审第一名的悉地国际,与提出新方案的Mecanoo建筑事务所,联手为龙岗带来了扁平、串联、又极具视觉冲击力的四座新建筑。
所以,当我们看到最终建成的四座场馆的外立面没有一处是垂直墙面之时,便容易理解这组建筑希望跳出既有的静态环境、建立属于自身的文化秩序、同时又表达某种动态张力的美学意图。

总平面图
四座建筑由北至南分别为科技馆,青少年宫,公共艺术馆,书城。出于使用时间和频率不同,四座建筑策划的出发点及定位不尽相同:馆一是目前深圳展示面积最大的以科学创新因子为题的科技馆,强调科学教育资源的共享,旨在为青少年儿童打造一系列科普公益课程;馆二为青少年宫,八千多平米的展示空间包含多个人文知识体验探索专区。馆二中的半开放教室及多功能厅、演播厅亦可以成为少儿文化节目的录制场地;馆三引进了先进的多媒体展示手段、以互动式、探索性观展模式激发青少年的设计创新思维,承担着创新艺术交流的职能。馆四则为公共性质的图书中心,承载着阅读和体验的双重目的,也是线下签售活动的重要基地。

西邻客家围屋

东邻龙岗广场

交织(BIM学习)的人行动线模糊了城市场所的边界
从场地上看,这组建筑最大的设计挑战,在于从超长(410mx60m)的用地限制中,建立起自身的空间秩序。狭长的基地地块西邻商业街区及客家围屋,东邻空旷的龙岗广场。一个街区,两条马路,如何在这样“高密度”建筑群与“零密度”城市广场中间成为一个强有力的空间逻辑组织仍需要反复琢磨。设计最后通过斜柱、斜墙来消解其长方形的格局;体量上通过开口创造出多条人行动线模糊项目边界。建筑体量从地表升起,五层楼的高度设置首先缓解了龙城广场和客家围屋之间高差所造成的视觉压迫,倒金字塔式的外形又巧妙的在两两场馆之间围合出一个小型广场。人流可自如穿梭于南北两侧,为建筑群体之间可通达的最短距离创造条件。龙岗三馆南邻深惠路与地铁三号线,北侧与城市主干道龙翔大道相连,复合功能的土地利用不仅明晰了人群到达和进入建筑的方式,也衔接了建筑与城市的公共道路及交通。

两两场馆之间自然围合形成一个个小型广场
自相闭合的公共流线成为新颖的空间法则,这里在傍晚成为市民公共活动的重要场地。小型广场作为建筑主题的附加空间,可以促进及启发市民间的互动交流,即兴、自发的各类市民活动让整个街区充满着自由的呼吸,也显现了深圳这座城市最宝贵的自主精神。

立面表皮的不平行纹理增强了建筑形态的运动感
从建筑表皮的建构看,几个建筑单体大小不同的形体外墙均采用的直立锁边板材为预辊涂的紫红色铝板, 0.9毫米厚,大约为330毫米宽,分线位置与内部混凝土的暗梁格栅相互契合,转角及大斜面处采用钢筋混凝土与GRC加直立锁边铝板幕墙,与窗洞口自然过渡。倾斜的横向长条窗的打破空间的仪式感和稳定性,趣味性的划分给观者带来一种流动的“冲浪”感觉。全过程BIM设计保障了这座建筑必要的实施精确性。从方案阶段开始,国际联合团队通过3D模型全方位观察区域内的直立锁边排布规则及板材尺寸,以便指导施工选材和空间定位。

公共艺术展厅

通往展厅的主入口

通往下沉广场的阶梯
空间的策划并非静态,场馆展览内容的不固定,参观人群的不定性都对空间的兼容性和可变性提出了更高的要求,也加剧了设计的难度和运营的风险。针对未来使用人群的差异,使用时间及频率的不同,对空间需求和空间价值进行系统的整理,经济上才能降低能耗及运营成本,避免未来投资的浪费。所以,最后呈现的虽是四座分立的建筑,但是它们相互连接、一体化运作的实质为不断裂变生长的城市文化功能提供了新的范例。

建筑体量间的错动、挤压、互动

清水混凝土、黑色金属、木材间的交替重复营造干净、简洁的室内空间

设计的光影和陈设触动了建筑内部运动感

倾斜的立面为建筑顶层的观景设施提供了广阔的视角

转角自然过渡与窗洞口的完美契合
这种连接首先是体量上的,建筑形态彼此错动、挤压、交互,产生与都市宏达背景所呼应的“地形感”。虽然建筑是全新的,但内部体验上略有“改建扩建”的感觉,几座场馆的内部氛围充满着工业感,与色彩冲浪的外形气质形成强烈的对比。色彩和动线吸引着人们不断地到访和体验,乐此不彼地和家人一起来到这里,各个年龄段的文化需求在不同的空间中得到多样化的满足。

公共艺术装置为建筑注入活力
这组文化设施已经成为深圳城市空间逻辑的新进组织者。与诸多追求稳态秩序的文化建筑相比,它们充满着“变量特质”,巨大的倾斜界面和交织流动的地上地下空间,共同属于深圳这座城市的未来。
项目图纸

总平面图

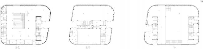
一层平面图

二层平面图

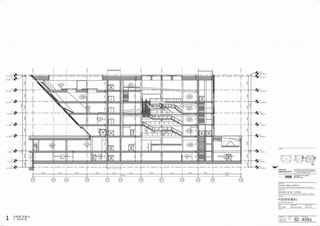
科技馆剖面图

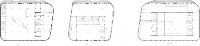
公共艺术馆首层平面图

公共艺术馆四层平面图

公共艺术馆剖面图
(BIM工作)

科技馆首层平面图

科技馆剖面图

青少年宫首层平面图

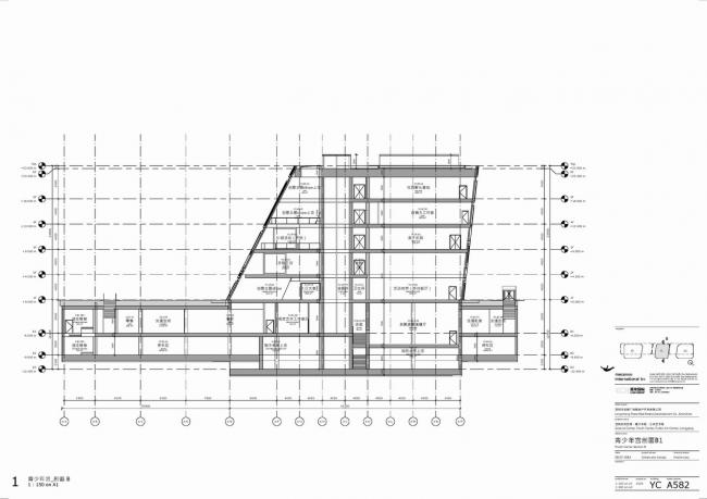
青少年宫剖面图

青少年宫剖面图

建筑与上位空间的关系
项目信息
项目名称: 深圳市龙岗区科技馆、青少年宫、公共艺术馆
项目地点:广东省深圳市龙岗区龙翔大道31号
建设单位: 深圳市龙岗区住房与建设局
方案建筑师: Mecanoo建筑事务所(Nuno Fontarra,Friso vander Steen,史艳)
执行建筑师: CCDI 悉地国际设计(张璐、罗冬凤)
结构工程师:CCDI 悉地国际设计(刘金龙、卜红丹)
机电工程师:CCDI 悉地国际设计(旷磊,阮伟强,彭洲,罗潇)
设计/竣工时间: 2014 / 2018
书城总建筑面积:35822㎡
科技馆建筑面积:9715㎡
青少年宫建筑面积:7785㎡
公共艺术馆建筑面积:13710㎡
建筑高度:23.9m
建筑摄影:方健@思康工作室
建筑评论:艾侠@伴步文化

BIM建筑网





评论前必须登录!
注册